$650,000
 $3,489 est/mo Sourced by Back At You

O Union Street W,Champlain, ON K0B 1R0

Champlain, ON K0B 1R0

Share:

Description

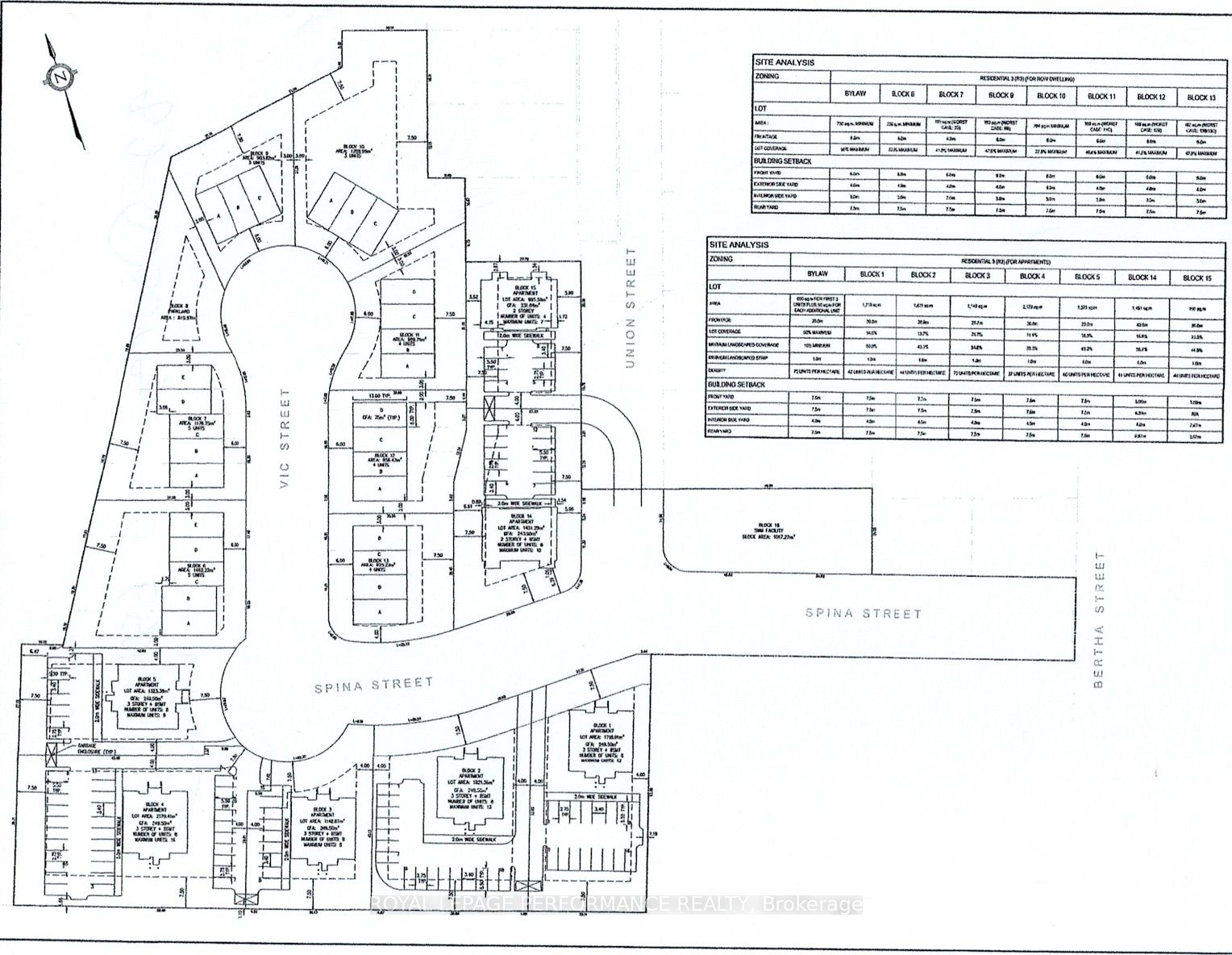
Prime Subdivision Opportunity Vankleek Hill, OntarioA rare and ready-to-go development opportunity in the heart of charming Vankleek Hill! This already subdivided parcel offers a total of 36 residential lots (as per plan). Perfect for builders or investors looking to capitalize on a growing community known for its small-town appeal, thriving local culture, and strategic location between Ottawa and Montreal. Each lot is designed with residential development in mind, with road allowances and access infrastructure Road allowances & infrastructure already mapped out but not done.. The subdivision plan has been prepared and can potentially move forward quickly, minimizing upfront work for the right buyer. Whether youre planning custom homes, semi-detached units, or a cohesive new community, this property delivers on potential, location, and value. Minutes from schools, parks, shops, and local amenities Easy access to Hwy 417, Ottawa & Montreal Utilities available nearby, Dont miss this exceptional land development opportunity in one of Eastern Ontarios most desirable small towns! Here are the additional PIN numbers included with this listing : 541580001 541580012 541580023 541580011 541580022 541580014 541580013 541580024 541580010 541580021 541580020 541580009 541580008 541580019 541580016 541580015 541580007 541580018 541580017 HST is in addition to the purchase price.

Details

MLS #X12204680
Listing TypeFor Sale
Sub-TypeResale
StatusNew
Year0
Days On Site153
Listing Provided ByROYAL LEPAGE PERFORMANCE REALTY | X12204680 479102

Features

Acreage0.14
Water FrontNone

Interior

Interior FeaturesNone

Parking

Garage Yes / NoNo

Utilities

SewerNone

Taxes

Tax Annual Amount130
Tax Legal DescriptionPCL PLAN-1 SEC 46M73; LT 25 PL 46M73; CHAMPLAIN
Tax Year2025

Area Information

ProvinceON
CountyPrescott and Russell
CityChamplain
Postal CodeK0B 1R0
Area613 Vankleek Hill
Sourced by Back At You

Request a showing

Request a showing

Loading Form
MLS Internet Data Exchange (IDX) information is provided exclusively for consumers’ personal, non-commercial use and may not be used for any purpose other than to identify prospective properties consumers may be interested in purchasing, and that the data is deemed reliable but is not guaranteed accurate by the Toronto Real Estate Board.

Contact

Learn More About This Property

ProvinceON
CountyPrescott and Russell
CityChamplain
Postal CodeK0B 1R0
Area613 Vankleek Hill
Sourced by Back At You
Nearby Listings (Within 1/10 mile)
Price: $487K - $812K
sqft: 0 - 0
Listing Updated: September 25, 2025 at 7:15:57 AM PDT